The Ascent is a residential project consisting of two concrete blocks connected by a shared canopy and unified through a bold vertical circulation strategy. At the heart of the design is a steel mesh façade that transforms the staircases into both a functional element and a visual centerpiece. This mesh forms a semi-transparent inner façade, creating a sense of openness and inviting passersby to explore the space between the buildings.

Site Plan SC: 1/5000

Three Housing Typologies: 1-Bedroom, 2-Bedroom, and Duplex

GF Plan SC: 1:300 - Public & Common Areas

Lev. 1 Plan SC: 1/300 - Private Residential Units

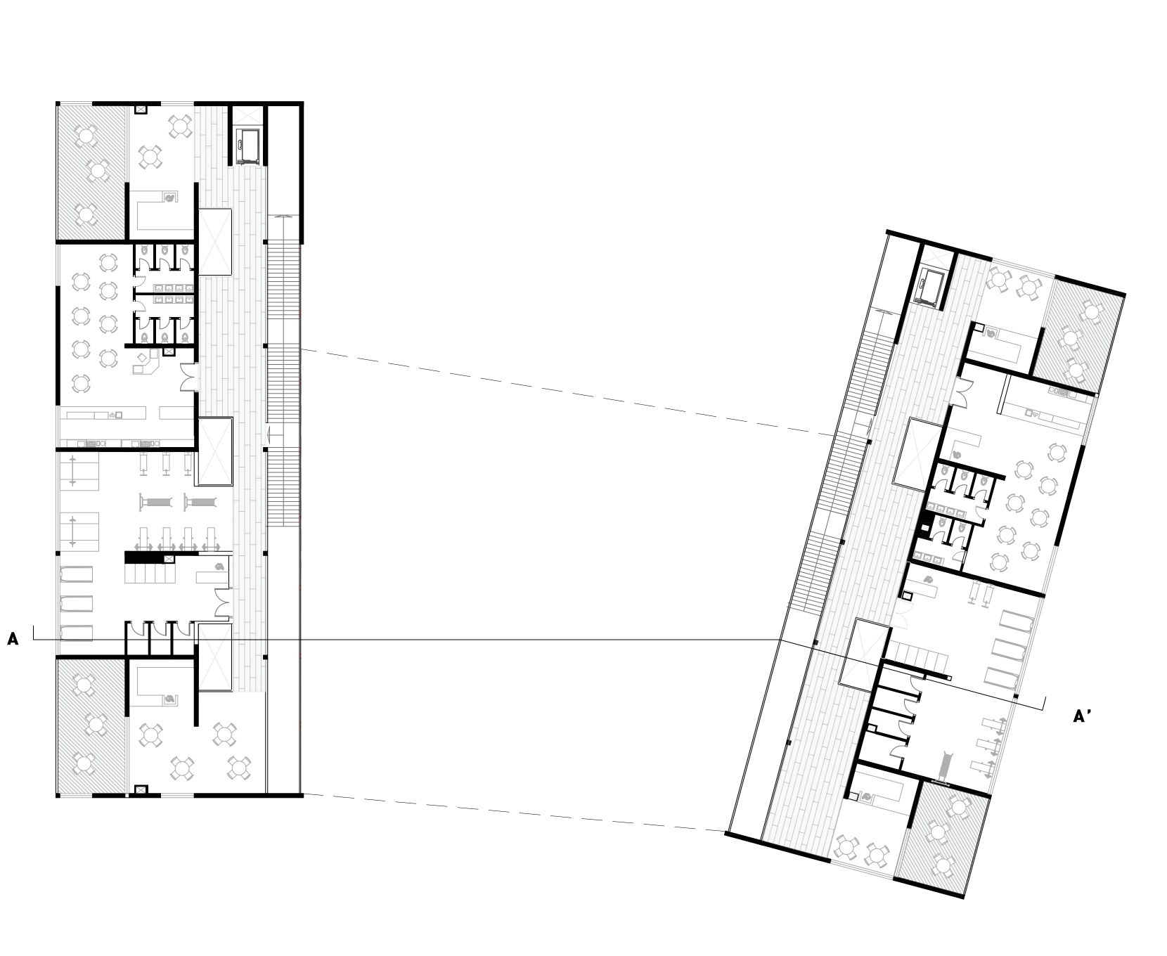
Lev.5 Plan SC: 1/300 - Public & Common Areas

Section AA' SC: 1/300

Main Façade SC: 1/300 

Back to Top